w rejonie Paphos (Konia) na sprzedaż

Cena: 430000 € ( 1840400 zł ) Wyświetleń oferty nieruchomości: 1209


Powierzchnia: m2


Liczba sypialni: 3


Liczba łazienek: 3

Oferta nieruchomości

Działka:

Na sprzedaż

Powierzchnia działki:

m2

Powierzchnia nieruchomości:

m2

Pomieszczenia:

3 łazienki, 3 sypialnie,

dywany

dzwonek do drzwi

podwójne schody

balkon

umeblowanie

otwarta kuchnia

osobna kuchnia

dostęp do wody

basen

brak

grill

garaż

parking kryty

odkryty parking

dostęp do drogi

telewizja satelitarna

dostęp do prądu

dostęp do internetu

linia telefoniczna

klimatyzacja

ilość poziomów

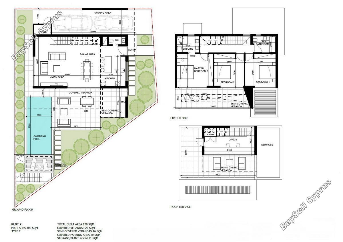
Dom wolnostojący w Pafos Konia na sprzedaż Cypr

Dziewięć luksusowych willi o nowoczesnym wystroju.

Zlokalizowany w Koni, doskonałej i popularnej okolicy ze względu na równowagę kulturową i dogodną lokalizację, w pobliżu międzynarodowej szkoły, sklepów, autostrady oraz w niewielkiej odległości od morza i obszaru turystycznego.

Nieruchomości są nowoczesne i przestronne, z panoramicznym widokiem na morze z ogrodu na dachu.

Każda willa posiada 3 sypialnie, 3 łazienki oraz w pełni wyposażoną kuchnię, szafy, jednostki podtynkowe VRV do chłodzenia i ogrzewania podłogowego.

Pakiet Basen i Meble są opcjonalne.
Sypialnie: 3
Łazienki: 3
Całkowita powierzchnia zadaszona: 182 mkw
Werandy: 23 mkw
Działka: 300 mkw
Prywatny basen
Nowo zbudowany
Klimatyzacja
Centralne ogrzewanie
Blisko udogodnień
Podwójne szyby
Pokój z łazienką
W pełni wyposażona kuchnia
Widoki na góry
Ciśnieniowy system wodny
Weranda
Ogrzewanie podłogowe,
VRV do chłodzenia
System alarmowy

Lokalizacja

Podobne

 w rejonie Paphos (Konia) na sprzedaż

w rejonie Paphos (Konia) na sprzedaż

Oferta sprzedaży
Rejon Cypru: Paphos
Miejscowość: Konia
Metraż nieruchomości 0 m2, Metraż działki 0 m2,
Ilość sypialni : 3,Wiadomość : 2
Cena : 0 euro ( 0 złotych )
Apartament w rejonie Paphos (Konia) na sprzedaż

Apartament w rejonie Paphos (Konia) na sprzedaż

Oferta sprzedaży
Rejon Cypru: Paphos
Miejscowość: Konia
Metraż nieruchomości 75 m2, Metraż działki 0 m2,
Ilość sypialni : 2,Wiadomość : 2
Cena : 175400 euro ( 747204 złotych )
Willa w rejonie Paphos (Konia) na sprzedaż

Willa w rejonie Paphos (Konia) na sprzedaż

Oferta sprzedaży
Rejon Cypru: Paphos
Miejscowość: Konia
Metraż nieruchomości 129 m2, Metraż działki 302 m2,
Ilość sypialni : 3,Wiadomość : 3
Cena : 471500 euro ( 2008590 złotych )
Willa w rejonie Paphos (Konia) na sprzedaż

Willa w rejonie Paphos (Konia) na sprzedaż

Oferta sprzedaży
Rejon Cypru: Paphos
Miejscowość: Konia
Metraż nieruchomości 162 m2, Metraż działki 325 m2,
Ilość sypialni : 3,Wiadomość : 0
Cena : 446500 euro ( 1902090 złotych )
Willa w rejonie Paphos (Konia) na sprzedaż

Willa w rejonie Paphos (Konia) na sprzedaż

Oferta sprzedaży
Rejon Cypru: Paphos
Miejscowość: Konia
Metraż nieruchomości 124 m2, Metraż działki 218 m2,
Ilość sypialni : 3,Wiadomość : 2
Cena : 389000 euro ( 1657140 złotych )
Willa w rejonie Paphos (Konia) na sprzedaż

Willa w rejonie Paphos (Konia) na sprzedaż

Oferta sprzedaży
Rejon Cypru: Paphos
Miejscowość: Konia
Metraż nieruchomości 178 m2, Metraż działki 300 m2,
Ilość sypialni : 3,Wiadomość : 3
Cena : 320000 euro ( 1363200 złotych )
Willa w rejonie Paphos (Konia) na sprzedaż

Willa w rejonie Paphos (Konia) na sprzedaż

Oferta sprzedaży
Rejon Cypru: Paphos
Miejscowość: Konia
Metraż nieruchomości 155 m2, Metraż działki 287 m2,
Ilość sypialni : 3,Wiadomość : 3
Cena : 2000000 euro ( 8520000 złotych )
Dom typu Bungalow w rejonie Paphos (Konia) na sprzedaż

Dom typu Bungalow w rejonie Paphos (Konia) na sprzedaż

Oferta sprzedaży
Rejon Cypru: Paphos
Miejscowość: Konia
Metraż nieruchomości 0 m2, Metraż działki 265 m2,
Ilość sypialni : 3,Wiadomość : 2
Cena : 0 euro ( 0 złotych )
Willa w rejonie Paphos (Konia) na sprzedaż

Willa w rejonie Paphos (Konia) na sprzedaż

Oferta sprzedaży
Rejon Cypru: Paphos
Miejscowość: Konia
Metraż nieruchomości 172 m2, Metraż działki 637 m2,
Ilość sypialni : 3,Wiadomość : 2
Cena : 395000 euro ( 1682700 złotych )

Kontakt

=

Wyszukiwarka

Region

Lokalizacja

Rodzaj nieruchmości

Cena minimalna

Maksymalna cena

Nieruchomości

Apartament Ayia Napa
Apartament Protaras
Apartament Famagusta
Apartament Larnaka
Apartament Paphos
Apartament Limassol
Apartament Nikozja

Dom Ayia Napa
Dom Protaras
Dom Famagusta
Dom Larnaka
Dom Paphos
Dom Limassol
Dom Nikozja

Willa Ayia Napa
Willa Protaras
Willa Famagusta
Willa Larnaka
Willa Paphos
Willa Limassol
Willa Nikozja

Poznaj Cypr z nami!


Wirtualne zwiedzanie Cypru 360


Nasze filmy z Cypru