w rejonie Paphos (Sea Caves) na sprzedaż

Cena: 1000000 € ( 4280000 zł ) Wyświetleń oferty nieruchomości: 1229


Powierzchnia: m2


Liczba sypialni: 5


Liczba łazienek: 4

Oferta nieruchomości

Działka:

Na sprzedaż

Powierzchnia działki:

m2

Powierzchnia nieruchomości:

m2

Pomieszczenia:

dywany

dzwonek do drzwi

podwójne schody

balkon

umeblowanie

otwarta kuchnia

osobna kuchnia

dostęp do wody

basen

brak

grill

garaż

parking kryty

odkryty parking

dostęp do drogi

telewizja satelitarna

dostęp do prądu

dostęp do internetu

linia telefoniczna

klimatyzacja

ilość poziomów

Dom Bungalow w Jaskiniach Morskich Pafos na sprzedaż Cypr

Luksusowa willa położona w słynnej części Jaskiń Morskich, Peyia.

Wyjątkowy obszar otoczony rolnictwem i przyrodą, z pobliskimi udogodnieniami i atrakcjami, plażami oznaczonymi niebieską flagą i tradycyjnymi wioskami do zwiedzania.

Do Pafos można z łatwością dojechać w 15 minut. Obszar ten charakteryzuje się dużym popytem na inwestycje i stałe zamieszkanie.

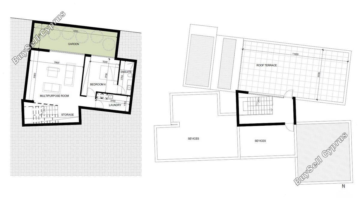
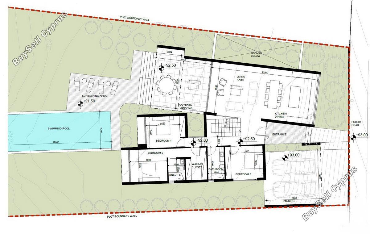
Ta willa zapewnia niezakłócony widok na morze i zapewnia maksymalną prywatność. Ta oszałamiająca willa ma 3 poziomy powierzchni mieszkalnej, w tym parter, przestronną półpiwnicę i ogród na dachu.

Wejście i parking na parterze z 3 sypialniami i dostępem do przestronnego obszaru zewnętrznego i basenu przelewowego.

Sypialnie: 5
Łazienki: 4
Całkowita powierzchnia: 330 m2
Werandy: 64 mkw
Działka: 1113 mkw
Prywatny basen
Nowo zbudowany
Dom parterowy
Blisko udogodnień
Podwójne szyby
Pokój z łazienką
Kominek
Widoki na góry
Spokojna lokalizacja
Niezakłócone widoki na morze
Weranda
Odległość od morza?
Pokój wielozadaniowy
Obszar baru
Pralnia/magazyn
Prywatny parking na 2 samochody
Ekskluzywny ogród na dachu
Miejsce na grilla na poziomie kuchni
Basen przelewowy 4*12 metrów
Jacuzzi na tarasie na dachu
Kominek w części wypoczynkowej
Wysokie sufity.

Lokalizacja

Podobne

Willa w rejonie Paphos (Sea Caves) na sprzedaż

Willa w rejonie Paphos (Sea Caves) na sprzedaż

Oferta sprzedaży
Rejon Cypru: Paphos
Miejscowość: Sea Caves
Metraż nieruchomości 230 m2, Metraż działki 2 m2,
Ilość sypialni : 3,Wiadomość : 3
Cena : 950000 euro ( 4047000 złotych )
Willa w rejonie Paphos (Sea Caves) na sprzedaż

Willa w rejonie Paphos (Sea Caves) na sprzedaż

Oferta sprzedaży
Rejon Cypru: Paphos
Miejscowość: Sea Caves
Metraż nieruchomości 134 m2, Metraż działki 723 m2,
Ilość sypialni : 3,Wiadomość : 3
Cena : 725000 euro ( 3088500 złotych )
Willa w rejonie Paphos (Sea Caves) na sprzedaż

Willa w rejonie Paphos (Sea Caves) na sprzedaż

Oferta sprzedaży
Rejon Cypru: Paphos
Miejscowość: Sea Caves
Metraż nieruchomości 320 m2, Metraż działki 5 m2,
Ilość sypialni : 5,Wiadomość : 3
Cena : 730000 euro ( 3109800 złotych )
Willa w rejonie Paphos (Sea Caves) na sprzedaż

Willa w rejonie Paphos (Sea Caves) na sprzedaż

Oferta sprzedaży
Rejon Cypru: Paphos
Miejscowość: Sea Caves
Metraż nieruchomości 950 m2, Metraż działki 3 m2,
Ilość sypialni : 5,Wiadomość : 5
Cena : 4500000 euro ( 19170000 złotych )
Willa w rejonie Paphos (Sea Caves) na sprzedaż

Willa w rejonie Paphos (Sea Caves) na sprzedaż

Oferta sprzedaży
Rejon Cypru: Paphos
Miejscowość: Sea Caves
Metraż nieruchomości 200 m2, Metraż działki 1 m2,
Ilość sypialni : 4,Wiadomość : 4
Cena : 1100000 euro ( 4686000 złotych )
Willa w rejonie Paphos (Sea Caves) na sprzedaż

Willa w rejonie Paphos (Sea Caves) na sprzedaż

Oferta sprzedaży
Rejon Cypru: Paphos
Miejscowość: Sea Caves
Metraż nieruchomości 250 m2, Metraż działki 1 m2,
Ilość sypialni : 4,Wiadomość : 3
Cena : 570000 euro ( 2428200 złotych )
Willa w rejonie Paphos (Sea Caves) na sprzedaż

Willa w rejonie Paphos (Sea Caves) na sprzedaż

Oferta sprzedaży
Rejon Cypru: Paphos
Miejscowość: Sea Caves
Metraż nieruchomości 490 m2, Metraż działki 1 m2,
Ilość sypialni : 4,Wiadomość : 5
Cena : 1600000 euro ( 6816000 złotych )
Willa w rejonie Paphos (Sea Caves) na sprzedaż

Willa w rejonie Paphos (Sea Caves) na sprzedaż

Oferta sprzedaży
Rejon Cypru: Paphos
Miejscowość: Sea Caves
Metraż nieruchomości 300 m2, Metraż działki 2 m2,
Ilość sypialni : 5,Wiadomość : 5
Cena : 0 euro ( 0 złotych )
Willa w rejonie Paphos (Sea Caves) na sprzedaż

Willa w rejonie Paphos (Sea Caves) na sprzedaż

Oferta sprzedaży
Rejon Cypru: Paphos
Miejscowość: Sea Caves
Metraż nieruchomości 160 m2, Metraż działki 750 m2,
Ilość sypialni : 3,Wiadomość : 3
Cena : 402500 euro ( 1714650 złotych )

Kontakt

=

Wyszukiwarka

Region

Lokalizacja

Rodzaj nieruchmości

Cena minimalna

Maksymalna cena

Nieruchomości

Apartament Ayia Napa
Apartament Protaras
Apartament Famagusta
Apartament Larnaka
Apartament Paphos
Apartament Limassol
Apartament Nikozja

Dom Ayia Napa
Dom Protaras
Dom Famagusta
Dom Larnaka
Dom Paphos
Dom Limassol
Dom Nikozja

Willa Ayia Napa
Willa Protaras
Willa Famagusta
Willa Larnaka
Willa Paphos
Willa Limassol
Willa Nikozja

Poznaj Cypr z nami!


Wirtualne zwiedzanie Cypru 360


Nasze filmy z Cypru